Architektur/Bauleitung:
  Wirz Architekt:innen, Zürich
Bauherrschaft:
  Privat
Auftragsart:
  Direktauftrag
Planung und Ausführung:
  2015–17
Farbgestaltung:
  Cécile Burri Farbgestaltung, Zürich
Bilder:
  Hannes Henz, Zürich
Bilder schwarzweiss / Pläne:
  Wirz Architekt:innen, Zürich
Charakteristisch für den Entwurf von 1972 ist die Unterscheidung 
zwischen der verglasten, horizontal gegliederten Südseite und der 
muralen, volumetrischen Ausbildung mit den zylinderförmigen 
Treppenhäusern auf der Nordseite. Im Innern wurde diese Ausrichtung 
durch die Setzung des Treppenhauses und der rückwärtigen Zimmer sowie 
der talseitig orientierten Wohn- und Schlafräume übernommen. Die 
Verhältnisse waren aber sehr beengt. 
Wir versuchten nun die Qualität und die räumliche Ordnung des 
Erdgeschosses zu stärken, indem die Decken- und Bodenbeläge 
vereinheitlicht und die Nord-Süd-Achse wieder geöffnet wurde. Mit der 
neuen Erschliessung des Dachgeschosses und dem Einfügen eines 
«Jahreszeitenzimmers» anstelle des Balkons führten wir die Raumfigur des
 Erdgeschosses im Obergeschoss weiter: die Bewegung um den 
(Treppen-)Kern und die Blickachse durchs Gebäude. Der reizvolle 
Gegensatz zwischen dem grossartigen Fernblick über den See und dem Blick
 in die landwirtschaftlich genutzte, durch den Waldrand am Hügelfuss 
gefasste Senke wird so beim Gang durchs Haus präsent.
Trotz Umbau eines Hausteils sollte die Einheit des 
Doppeleinfamilienhauses gewahrt bleiben. Die neue Eindeckung des Dachs 
mit den kräftigen Kaminen wurde deshalb zurückgestellt und wird zu einem
 späteren Zeitpunkt mit den Nachbarn zusammen ausgeführt. Der neue 
Rauputz der Fassade unterstreicht die volumetrische Ausbildung im 
Streiflicht, bleibt aber nahe beim Bestand. Die Fassadenfarbe wurde so 
gewählt, dass sie sich vom Nachbargebäude über den Buntanteil 
unterscheidet, nicht aber in der Farbrichtung. Die bestehende dunkle 
Dachuntersicht und das neue, ebenfalls dunkle Garagentor rahmen die 
beiden Wohngeschosse, die Haustüre wurde mit einem feinen Farbton 
ausgezeichnet, ohne die Fassadengliederung zu verändern.
Mit zwei gezielten Anpassungen der Gebäudeabwicklung auf der 
Eingangsseite und im Bereich des auskragenden Balkons konnte die 
energetische Sanierung vereinfacht werden. Gleichzeitig wurde so der 
Eingangsbereich volumetrisch beruhigt und auf der Südseite anstelle des 
Balkons und eines sehr kleinen Zimmers das «Jahreszeitenzimmer» 
realisiert. Dieser für das Projekt wesentliche Raum unterscheidet sich 
von den übrigen durch seine Uneindeutigkeit, er ist sowohl Innen- wie
 auch Aussenraum. Entsprechend anders ist die Materialisierung gewählt. 
Die roten Tonplatten können beides sein, mit der Holzdecke wird die 
Dachuntersicht und mit dem Straminbelag der Wände der Rauputz der 
Fassade aufgenommen. Die Falt-Schiebefenster definieren die neue 
Gebäudeecke als Abschluss der horizontalen Bänder, während die Fassade 
quasi durchs Haus geführt wird. Als Durchgangsraum konzipiert, ist auch 
die Nutzung als Gartenzimmer, Lesezimmer oder windgeschützter Balkon 
mehrdeutig.
Die neuen Holz-Metall-Fenster wurden «aussen» angeschlagen. Der Ausdruck
 insbesondere der nordseitigen Lochfassade konnte so erhalten werden. 
Durch die glänzend schwarz gestrichenen Fenstersimse im Innern wurden 
die Wohnräume optisch erweitert.
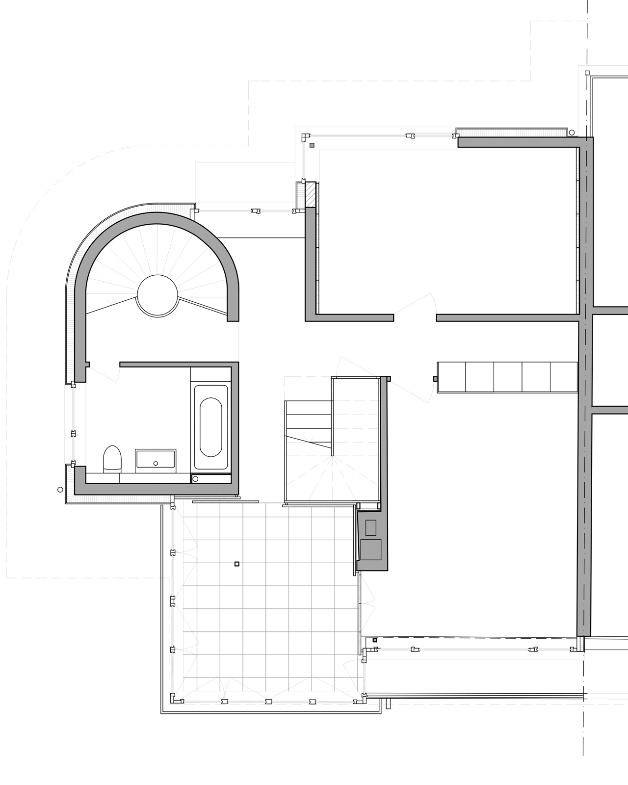
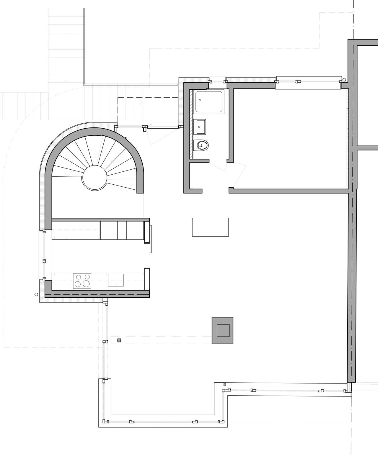
Der schmale Korridor im Obergeschoss – von der Wendeltreppe zu den 
kleinformatigen Bad- und Schlafzimmern – wurde aufgehoben. Die zentrale 
Positionierung der neuen Treppe ins Dachgeschoss schafft eine 
erstaunliche Grosszügigkeit an diesem Knotenpunkt der Erschliessung. Es 
entstehen so wie im Erdgeschoss ein Rundlauf und eine Blickachse quer 
durchs Haus, die zwei Geschosse werden typologisch näher 
zusammengerückt. Die Badezimmer wurden zusammengelegt und haben durch 
das Tageslicht und den Einbau der Badewanne in eine dunkel 
geflieste, rückwärtige Nische viel Raum gewonnen.
Das Dachzimmer ist als grosser Atelierraum über die neue Lukarne 
belichtet. Die komplizierte Dachgeometrie im Bereich der Wendeltreppe 
wurde im Estrichteil versteckt. Die Raumgeometrie des Ateliers ist 
beruhigt und gerichtet. Hinter einer als Paravent ausgebildeten, 
einseitig beplankten Ständerwand liegt die Treppe, die über das Atelier 
belichtet wird.
Mehr zum Farbkonzept
Projektdokumentation (PDF | 22.35 MB)