Architektur/Bauleitung:
Wirz Architekt:innen, Zürich
Bauherrschaft:
Privat
Auftragsart:
Direktauftrag
Planung und Ausführung:
2014–15
Bilder/Pläne:
Wirz Architekt:innen, Zürich
Denkmalpflege:
Kommunales Schutzobjekt
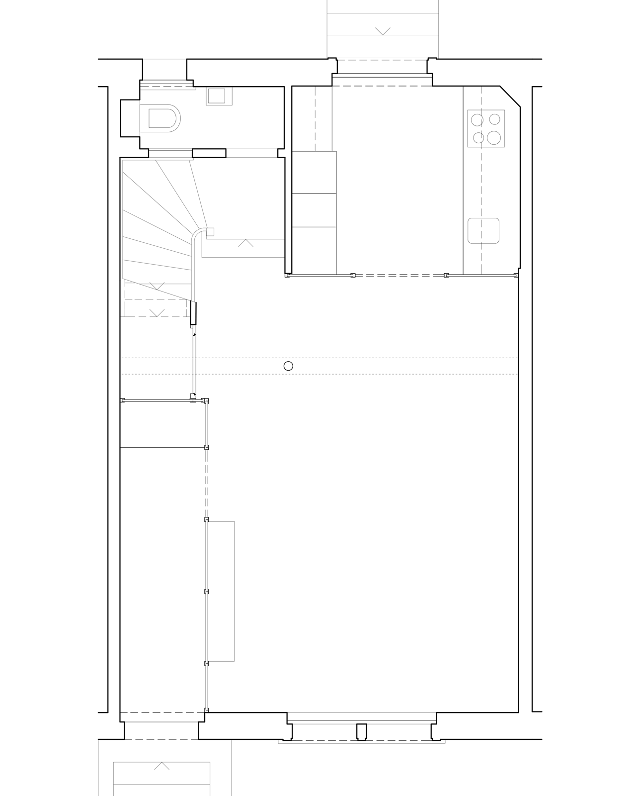
Trotz der knappen Platzverhältnisse sollte das unter Denkmalschutz
stehende Reihenhaus eine räumliche Grosszügigkeit erhalten. Eine der
Wohnnutzung «fremde» Metallständerkonstruktion mit opaken und
transparenten Füllungen und die Überlagerung der geforderten Nutzungen
vergrössern den Wohnraum im Erdgeschoss maximal. Der Raum erhält
einerseits klare Grenzen, wird aber optisch durch die Wahl der
filigranen Ständerwände erweitert. Die Raumstimmung wird geprägt durch die Kombination dieser neuen Elemente mit dem historischen Bestand. Der
Einbau eines Badezimmers im Dachgeschoss zoniert den offenen Raum unter
den Dachschrägen und erhöht die Flexibilität in der Nutzung des
Reihenhauses.