Architektur/Bauleitung:
Wirz Architekt:innen, Zürich
Bauherrschaft:
Privat
Auftragsart:
Direktauftrag
Planung und Ausführung:
2014–16
Farbgestaltung:
Cécile Burri Farbgestaltung, Zürich
Bilder:
Hannes Henz, Zürich
Pläne:
Wirz Architekt:innen, Zürich
Denkmalpflege:
Kommunales Schutzobjekt
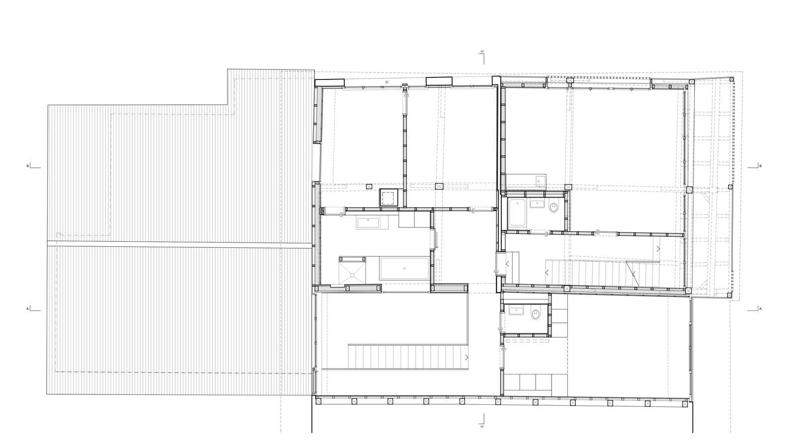
Das aufgrund seines Volumens für die Stadt Zürich eindrückliche
Bauernhaus mit drei Wohnteilen und einem Ökonomieteil wurde 1692 erbaut
und in den 1950er-Jahren um einen Werkstattanbau erweitert. Der
Scheunenteil mit der leer stehenden Schreinerei sollte nun als Wohnraum
ausgebaut werden. Der Einbau der Schreinerei hatte die Gebäudestruktur
zum Teil stark verunklärt. Der Umbau des unter Denkmalschutz stehenden
Hauses sollte die noch vorhandene historische Struktur erhalten und wo
möglich wieder stärker zum Ausdruck bringen. Eine sinnvolle Ausnützung
des grossen Volumens (natürliche Belichtung, feuerpolizeiliche Auflagen,
Denkmalpflege, Ökonomie) führte zu einem Raumprogramm mit zwei
Wohnungen und einem Atelier.
Historisch gewachsene Gebäudeteile wie Ställe, Tenn und Heubühne wurden
bei der Setzung der neuen Nutzungseinheiten berücksichtigt. Die
verschachtelten, ausgreifenden Grundrisse fügen sich – nach dem Rückbau
der Einbauten und Verkleidungen der Schreinerei – passgenau in die
bestehende Struktur und suchen nach Möglichkeiten für Belichtung und
Belüftung. Für die beiden Wohnungen wurden alle bestehenden Öffnungen
unverändert übernommen. Die neuen Fensteröffnungen des Ateliers in der
Bretterschalung der Scheune wurden mit gestrichenen Holzlamellen
«getarnt». Die Fenster von Küche und darüber liegendem Schlafzimmer der
Hauptwohnung wurden zusammengefasst und erinnern an die grosse
Toröffnung des ehemaligen Tenns. So konnte die bestehende
Fassadenstruktur erhalten werden, die neuen Nutzungen sind erst auf den
zweiten Blick (oder in der Nacht) lesbar.
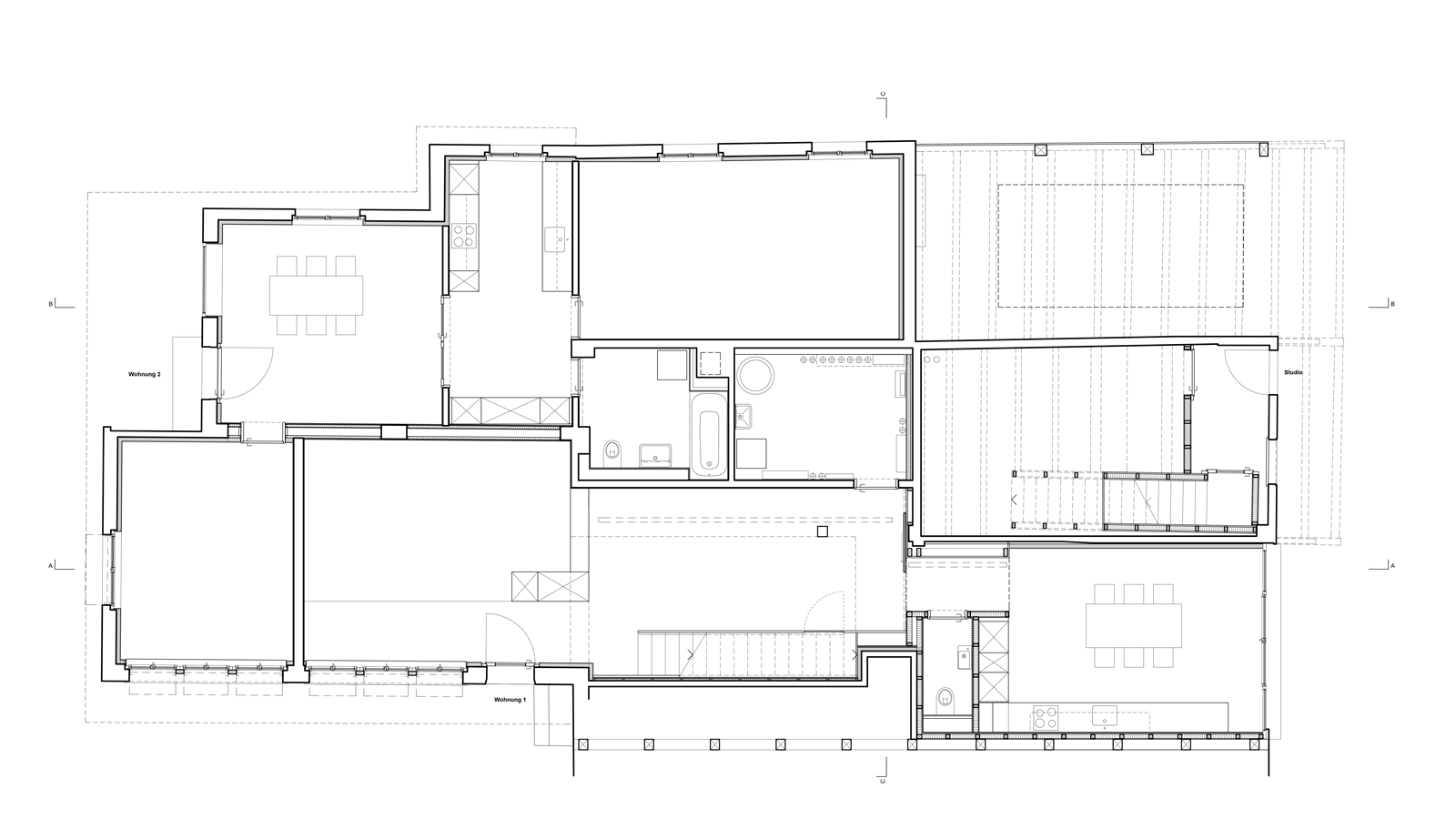
Die Hauptwohnung erstreckt sich über die ganze Tiefe der Scheune: vom
Hofzugang in die Küche bis in den Wohnraum im Werkstattanbau mit seinen
Südfenstern zum Nutzgarten hin. Typologisch entspricht diese Raumfolge
dem alten Tenn. Mit der zweigeschossigen Halle wird dieses auch in der
Höhe wieder erfahrbar. Die Massnahme erlaubt zudem eine gute Belichtung
der zentralen Halle. Durch die weissen Längswände entsteht der optische
Eindruck des durchgestossenen Tenns. Räumlich wird dies unterstützt
durch den Einbau von dunkel gestrichenen Möbeln anstelle von Querwänden
für die notwendigen Raumtrennungen. Im oberen Geschoss greift der
Grundriss seitlich in den Scheunenteil aus und ist dort über eine
interne Verbindung an das Atelier angeschlossen.
Die kleine Wohnung «schlängelt» sich in den gemauerten Gebäudeteilen des
später ergänzten Stalls und des Werkstattanbaus entlang der
Bocklerstrasse und erhält mit dem ehemaligen Eingang der Schreinerei
einen separaten Zugang.
Das Atelier im bisher nicht verbauten Teil der Scheune wurde als Holzbau
auf die unterste Heubühne gestellt, lässt die Dachhaut und die
bestehende Holzbretterfassade unberührt. So entsteht auf der Hofseite
eine kleine Laube als Aussenraum. Der Eingang erfolgt im Erdgeschoss
über den alten Stall. Die bestehende Tragstruktur wird sichtbar
belassen, wo feuerpolizeilich notwendig ist der Holzquerschnitt mit
neuem Holz ergänzt – der Nachweis musste für alle Stützen und Balken
separat geführt werden. Über das Atelier ist der Dachboden mit dem
ehemaligen Spähnesilo der Schreinerei erschlossen. Auf einen weiteren
Ausbau wurde verzichtet.
Für die Öffnungen in den verputzten Aussenwänden und in der Holzfassade
werden in Anlehnung an den Bestand zwei verschieden helle Brauntöne
gewählt. Dem stattlichen, beeindruckenden Bau auch im Innern einen
entsprechenden Ausdruck zu verleihen, war Leitmotiv für die weiteren
Überlegungen. Dazu wurden als erste Massnahme die Holzfenster
durchgefärbt, die Aussenhülle wird so im Innern ablesbar. Der
mineralische, mittelgraue Bodenbelag sowie die neutral pigmentierten,
massiven Eichenböden und Treppen werden ergänzt durch Brüstungen in
Holz, die in einer alten Technik veredelt wurden – einfache Materialien,
die gut altern.
Mehr zum Farbkonzept