Architektur:
Wirz Architekt:innen, Zürich
Bauherrschaft:
Stiftung Wagerenhof, Uster
Auftragsart:
Studienauftrag, 1. Preis
Planung und Ausführung:
2017–20
Generalunternehmer:
Schindler & Scheibling AG, Uster
Farbgestaltung:
Cécile Burri Farbgestaltung, Zürich
Bilder:
Hannes Henz, Zürich
Bilder schwarzweiss / Pläne:
Wirz Architekt:innen, Zürich
Energie:
Minergie-ECO zertifiziert
Bei der Fahrt von Steg im Tösstal zur auf 1000 m ü. M. gelegenen Strahlegg sind die Häuser der Strasse entlang aufgereiht wie an einer Perlenkette.
Das neue Wohnheim der Stiftung Wagerenhof für zwölf Bewohner:innen mit grossem Struktur- und Ruhebedarf liegt ganz hinten und folgt in seiner Setzung diesem Prinzip. Das Bauen in sensibler Landschaft mit hohem Naturwert erforderte Zurückhaltung. Ein einfaches Volumen mit einer ruhigen Dachfläche und minimalen Terraineingriffen respektiert diesen Ort und erinnert
an Feldscheunen in der Gegend. Das grosse Vordach bietet Schutz und integriert die Aussenräume in die kompakte Anlage. Der langgezogene Baukörper folgt der Topografie des schmalen Grats, der Landschaftsraum bleibt
durchgehend wahrnehmbar. Von der Strasse ist nur die schmale Giebelseite sichtbar, die Länge des Gebäudes wird perspektivisch stark verkürzt.
Eine Bodenplatte auf Mikropfählen ohne Unterkellerung reduzierte den Aushub auf ein absolutes Minimum und ist praktisch reversibel. Das Haus steht auf dieser Betondecke und ist
als reiner Holzbau konzipiert. Ein Kaltdach ermöglicht die schlanke Dachkonstruktion. Hofseitig entsteht durch die ortstypische Flugpfettenkonstruktion ein grosser Dachüberstand. Die grosse, witterungsgeschützte
Fläche vor dem Haus wird als Begegnungs-, Arbeits- und Lagerfläche zum integrierenden Hofraum.
Die Fassaden sind mit einer unbehandelten Weisstannenschalung verkleidet. Bandfenster verbinden die Innenräume mit der Landschaft, die Füllungen zwischen den Fenstern sind
mit einer feinen Silberlasur gestrichen, welche die Veränderung der rohen Holzoberflächen über die Zeit «sichtbar» macht: War der silberne Schimmer am Anfang kaum wahrnehmbar, tritt er mit der Vergilbung
des Holzes immer stärker zutage und verschwindet dann nach Jahren mit der Vergrauung des Holzes langsam wieder.
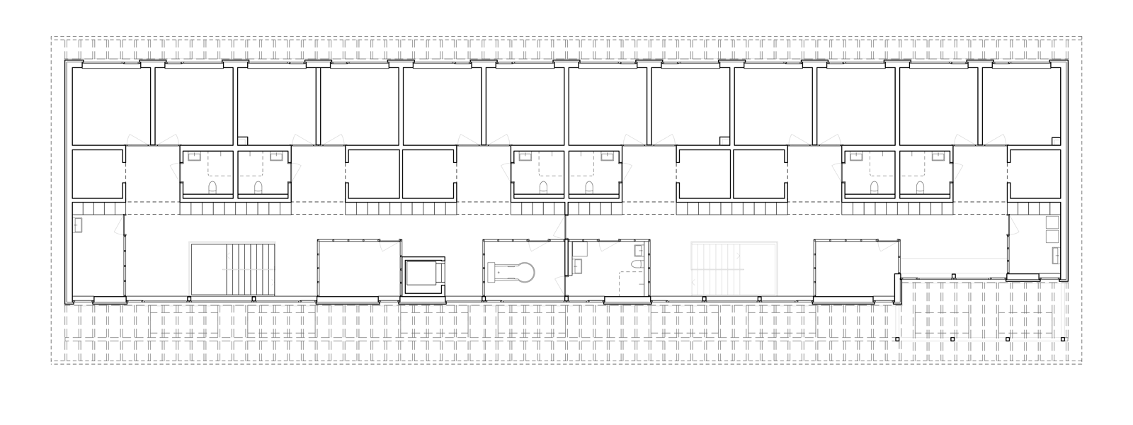
Das Gebäude beherbergt zwei Wohngruppen, welche sich in der Mitte die Küche und das Grossbad teilen. Die linear angelegte Zimmerschicht ergibt zwölf identische Zimmer,
alle sind gleich im positiven Sinn. Die aus dieser Anordnung erreichte geringe Gebäudetiefe mit beidseitiger Ausrichtung ermöglicht eine gute Belichtung und über die wechselnden Ausblicke einen engen Bezug zur
Landschaft. Das Haus ist längs gegliedert in zwei Raumschichten. Die breitere auf der Westseite besteht aus kammerartigen Räumen, diejenige zum Hof ist offen und durchlässig gestaltet. Vielfältige räumliche
Beziehungen zwischen den Raumschichten (über diagonale Durchblicke) und zwischen den Geschossen (über die in die Wohnung integrierte Treppe) schaffen ein abwechslungsreiches «Daheim» mit viel Bewegungsraum.
Gleichzeitig ist die klare Struktur sehr flexibel, die neutralen Räume sind in ihrer Grösse und Anordnung gut geeignet für Nutzungsänderungen. So lassen sich die beiden Wohngruppen bei Bedarf räumlich mehr oder weniger
stark verbinden.
Eine einfache, robuste Materialisierung mit einer zum Teil kräftigen Farbgebung prägt die Stimmung im Haus und hält der starken und sehr präsenten Landschaft stand.
Geheizt wird mit einer zentralen Stückholzheizung, diese wird ergänzt durch eine kleine Solaranlage auf dem Hauptdach. Optimiert wird die Energiebilanz durch eine PV-Anlage
auf dem nahen Unterstand für die Parkierung und mit einer Wärmerückgewinnung der Lüftungsanlage.
Mehr zum Farbkonzept