Architektur/Bauleitung:
Wirz Architekt:innen, Zürich
Bauherrschaft:
Baugenossenschaft Schönheim, Zürich
Auftragsart:
Direktauftrag
Planung und Ausführung:
2023–26
Farbgestaltung:
Cécile Burri Farbgestaltung, Zürich
Bilder:
Tom Licht, Zürich
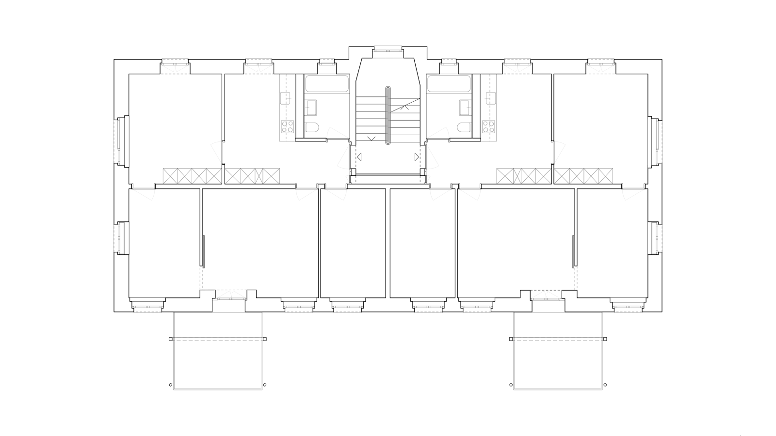
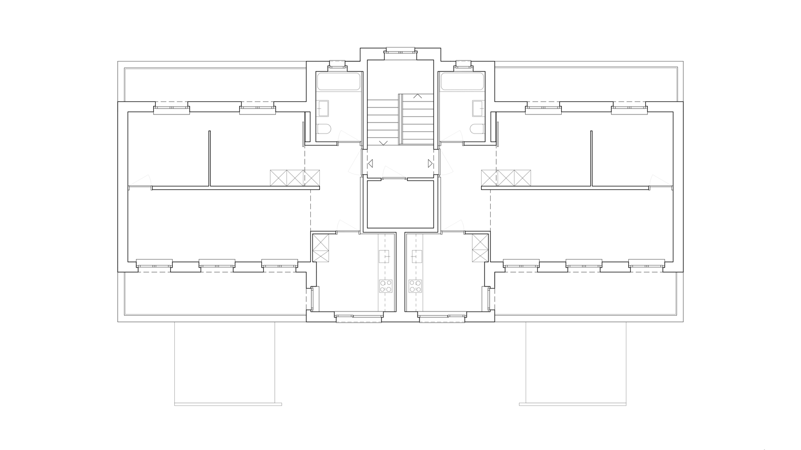
Pläne:
Wirz Architekt:innen, Zürich
Text in Bearbeitung
Ausführung 1. Etappe 2025
Ausführung 2. Etappe 2026 (in Ausführung)