Architektur/Bauleitung:
Wirz Architekt:innen, Zürich
Bauherrschaft:
Privat
Auftragsart:
Direktauftrag
Planung und Ausführung:
2020–21
Farbgestaltung:
Cécile Burri Farbgestaltung, Zürich
Konservierung/Restaurierung:
ARGE Läuchli Fischer Restaurierung
Bilder:
Hannes Henz, Zürich
Pläne:
Wirz Architekt:innen, Zürich
Denkmalpflege:
Kommunales Schutzobjekt
Das unter Schutz stehende Gebäude liegt ortsbaulich prägnant an erhöhter
Lage im Scheitel von zwei Strassen. Mit seinem Ausdruck im Reformstil
hebt es sich von den umliegenden Altbauten des 18. Jahrhunderts ab, fügt
sich durch seine noch ablesbare Struktur als vormaliges
Vielzweckbauernhaus dennoch ins gewachsene Ortsbild ein.
Der Ursprungsbau von 1824 ist ein zweiraumtiefes Mittertennhaus mit
Wohnteil im Osten und Tenn/Stall im Westen. 1905 wurde ein kleiner Anbau
auf der Ostseite angefügt und eine Zentralheizung eingebaut. Der
tiefgreifende Umbau von 1921 zu einem Wohn- und Geschäftshaus (mit
rückwärtig angebauter Ökonomie) gibt dem Gebäude das heutige Aussehen.
Der Stilwechsel vom klassizistischen Habitus zur zeittypischen
Reformarchitektur widerspiegelt die Nutzungsänderung vom Bauernhaus zum
Wohn- und Geschäftshaus im dörflichen Kontext.
Vorgefunden haben wir ein faszinierendes Konglomerat von mit grossem
Gestaltungswillen ausgestatteten Räumen. Die Entstehung und Geschichte
des Hauses ist immer noch gut nachvollziehbar. Raumstruktur und einzelne
Ausbauelemente des ursprünglichen Hauses werden überlagert von der
Aufbruchstimmung des Umbaus im Reformstil. Die gestalterische
Grundhaltung vermittelt eine Gesamteinheit trotz unterschiedlich
ausformulierter Details.
Diesen Ansatz nahmen wir – wieder hundert Jahre später – als Thema für
den geplanten Umbau mit einer abermals neuen Nutzung als
Mehrgenerationenhaus auf. Mit Augenmerk auf die Übergänge und Brüche in
diesem komplexen Raumgefüge und mit teils kaum sichtbaren Eingriffen
versuchten wir, ein Gleichgewicht zwischen den einzelnen Teilen
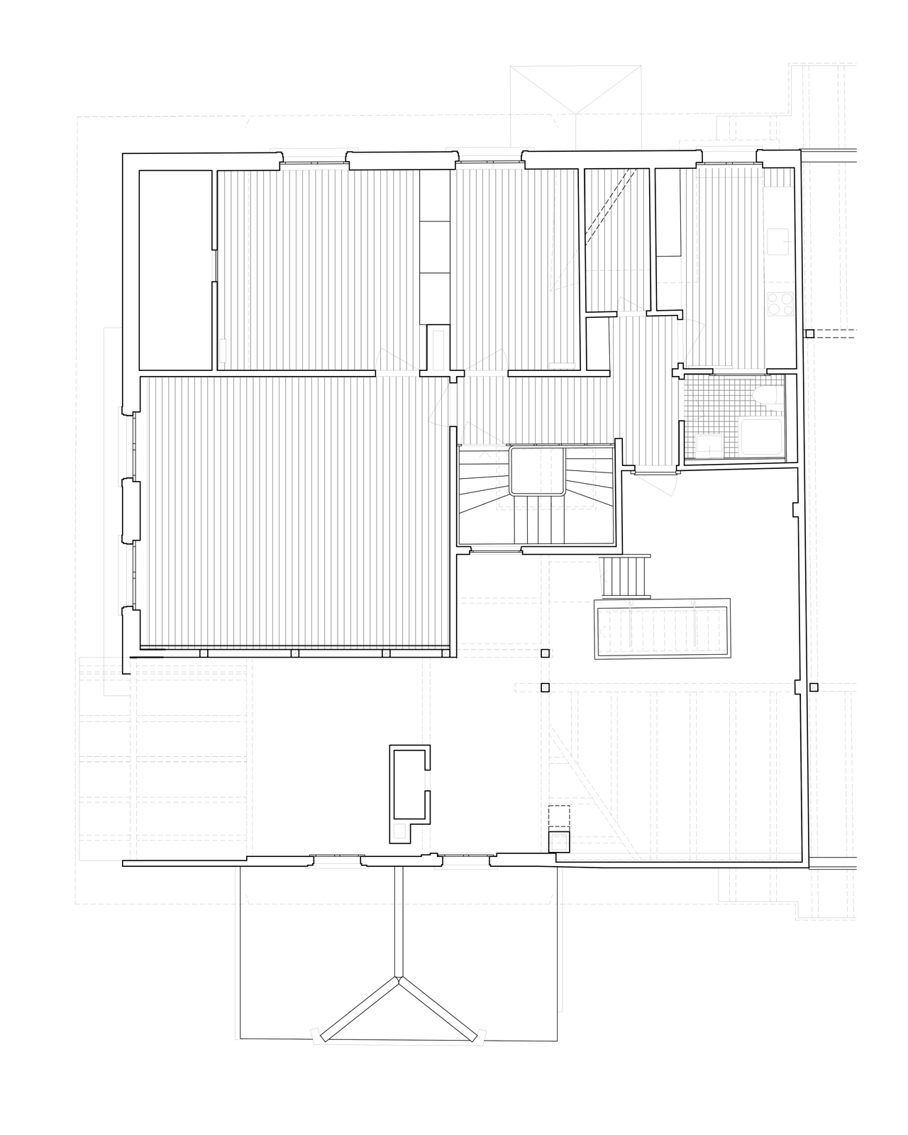
herzustellen. Wichtig war uns die Klärung der räumlichen Hierarchien zur
Orientierung im verschachtelten Grundriss: Die historisch wertvollen,
denkmalgeschützten Räume und Ausstattungselemente wurden sorgfältig
restauriert und erhalten so eine neue Präsenz. Die übrigen Räume,
insbesondere die Zimmer, wurden über ein einheitliches
Gestaltungskonzept zusammengefasst und bilden den neutralen Hintergrund.
Die Bäder reihen sich in ihrer abstrakten, monochromen Ausformulierung
als neue Elemente in den bestehenden Kontext.
Durch die Nutzung als Mehrgenerationenhaus konnte die bestehende
Raumstruktur praktisch unverändert übernommen werden. Nach dem Rückbau
sämtlicher Beläge der letzten fünfzig Jahre ist fast überall die
Originalsubstanz mit all ihren Gebrauchsspuren zum Vorschein gekommen.
Im Sinne der Bauherrschaft, die diese Altersspuren als Qualität schätzt,
sind Einbauten und Anpassungen additiv ergänzt worden. So sind die
Küchen als Möbel in die Zimmer gestellt und rauchgeschwärzte Balken aus
dem ursprünglichen Wohnhaus liegen neben – dunkel gebeizten – statisch
notwendigen Ergänzungen. Aus Rücksicht auf die bestehende Substanz
wurden nur zwei der drei Steigzonen ersetzt. Für die axialsymmetrische
Strassenfassade hatte man beim Umbau von 1921 statische Nachteile im
Bereich des alten Wohnhauses in Kauf genommen, diese mussten nun
ertüchtigt werden. Fassade und Dach waren bis auf die Wiederherstellung
der Tennöffnung (mit einem neuen Tor) nicht Teil des Umbaus.
Die integral erhaltene bäuerliche Umgebung ist wesentlich für die
Wirkung als belebtes Baudenkmal. Die alte Hocheinfahrt und der kleine
Hof wurden unverändert übernommen, der Garten von auswärtigen Pflanzen
befreit. Als gedeckter Aussensitzplatz wird bei offenem Tor der vordere
Teil des Tenns genutzt. Holzbeigen für die neu eingebauten Öfen
schmücken auch weiterhin die Fassaden des Ökonomieteils.
Mehr zum Farbkonzept
Interview UMBAUEN+RENOVIEREN 04/23