Architektur:
Wirz Architekt:innen, Zürich
Bauherrschaft:
Stiftung Wagerenhof, Uster
Auftragsart:
Direktauftrag
Planung und Ausführung:
2017–20
Farbgestaltung:
Cécile Burri Farbgestaltung, Zürich
Bilder:
Hannes Henz, Zürich
Bilder schwarzweiss / Pläne:
Wirz Architekt:innen, Zürich
Denkmalpflege:
Kommunales Inventar
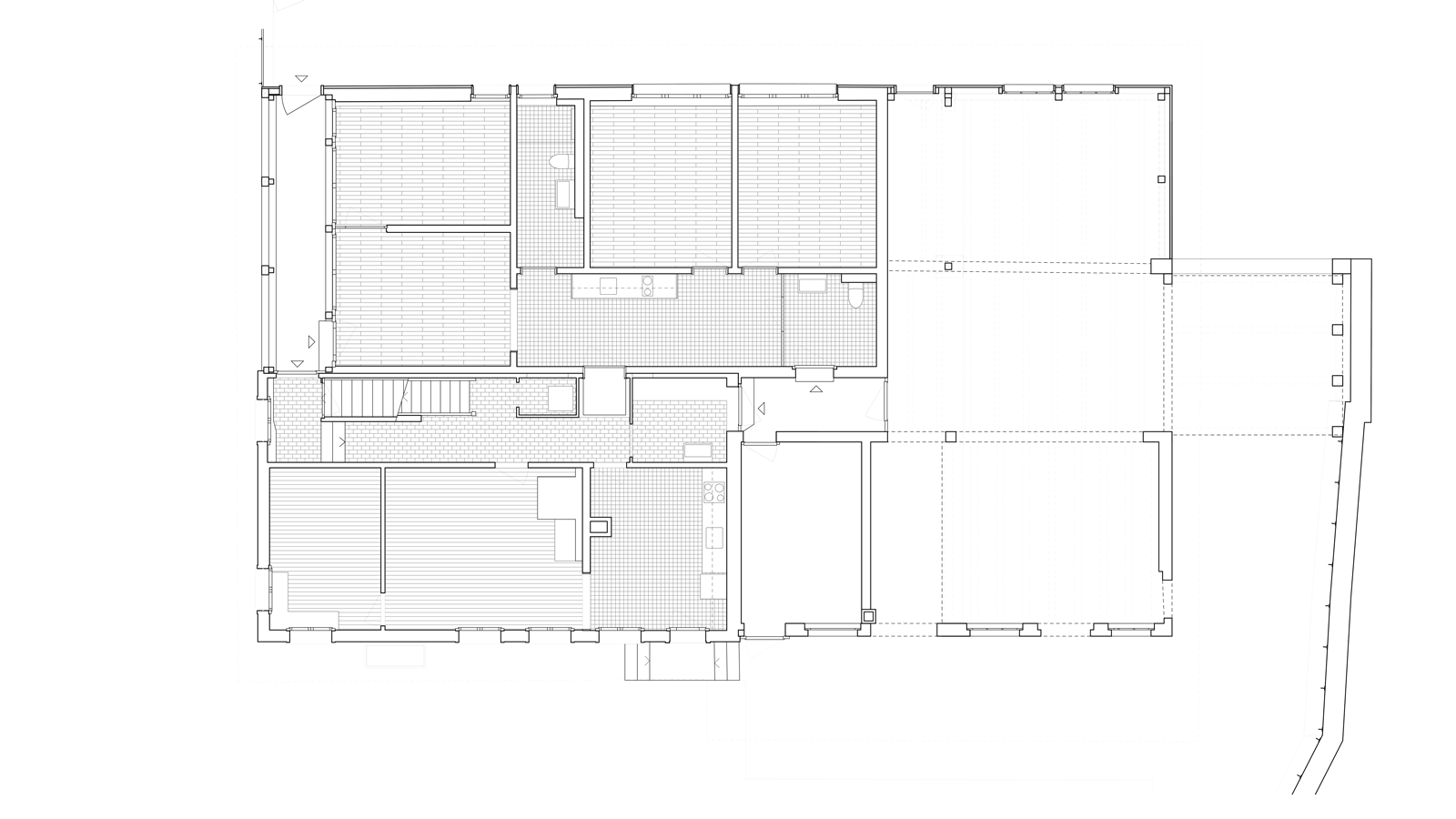
Das denkmalgeschützte Bauernhaus von 1932 liegt auf über 1000 m ü. M. inmitten von Magerwiesen. Die Stiftung Wagerenhof aus Uster möchte den
Hof nach jahrelangem Leerstand wieder beleben. Nach dem Umbau soll der Hof zusammen mit zwei oder drei Menschen mit Beeinträchtigung betrieben werden. Für diese wird im Innern des Ökonomieteils eine eigene Wohnung «angebaut». Der landwirtschaftliche Bereich wird modernisiert und durch eine frei stehende Remise und einen Stall ergänzt. Der Umgang mit der Bausubstanz ist geprägt vom Wechselspiel
zwischen denkmalpflegerischem Erhalt und betrieblich notwendigen Interventionen und Neuerungen.
Das Wohnhaus ist in seiner Struktur weitgehend erhalten, es wurde sanft renoviert und erhielt durch wenige additive Eingriffe ein zeitgemässes Bad und eine
neue Küche. Der nachträgliche Einbau von Radiatoren mit sichtbar geführten Stahlrohren erfüllt den notwendigen Komfort. Geheizt wird das ganze Haus über eine neue Stückholzheizung. Die (gespiegelte)
Grundrissstruktur wird im Neubau der Einliegerwohnung unter Berücksichtigung des statischen Systems der Scheune übernommen. Als Weiterentwicklung der Typologie dient der breite Korridor nicht nur der Erschliessung,
sondern wird durch die Teeküche auch zum Begegnugsort.
Die Eternitschindeln der Wohnhausfassade werden durch traditionelle Holzschindeln ersetzt. Die ehemalige Erschliessung über eine Laube wird reaktiviert
und gleichzeitig zur Belichtung des Wohnzimmers der Einliegerwohnung genutzt. In die bestehende Stulpschalung der Scheunenfassade werden nur sehr zurückhaltend neue Öffnungen gesetzt. Der Rückbau eines zwischen
Strasse und Scheune eingebauten Ziegenstalls rückt den Bauernhof weg vom Hang und gibt dem Erdgeschoss die für eine Tierhaltung notwendige Menge an Licht und Luft.
Die geschützte Konstruktion des Dachstuhls wird punktuell durch Aufdoppelungen verstärkt. Das additive Prinzip lässt die ursprünglichen Dimensionen sichtbar. Die geforderten Nutzlasten für die Bewirtschaftung des Heubodens über Stall und Einliegerwohnung werden separat über eine innen an die Aussenwand
angefügte Ständerkonstruktion abgetragen
Mehr zum Farbkonzept