Architektur/Bauleitung:
ARGE Ivo Bösch und Thomas Wirz, Zürich
Bauherrschaft:
privat
Auftragsart:
Direktauftrag
Planung und Ausführung:
2007–09
Bilder:
Nicolas Contesse
Pläne:
ARGE Ivo Bösch und Thomas Wirz, Zürich
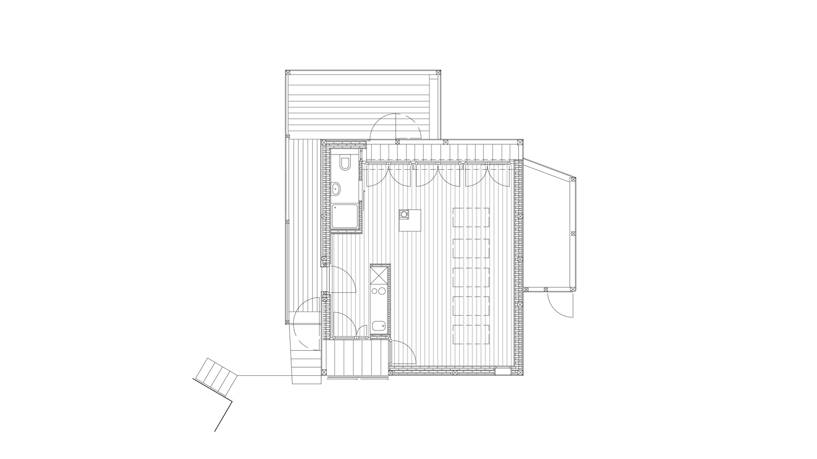
Das bestehende Stallgebäude wurde in Ergänzung zum Wohnhaus mit seinen
niedrigen Kammern als Wohnatelier ausgebaut. Der Ausbau sollte im engen
Strassenraum möglichst zurückhaltend in Erscheinung treten. Die neuen
Fensteröffnungen sind zurückversetzt von der bestehenden Hülle
angeordnet. Ein nach traditionellem Vorbild gefertigtes Holzgitter sowie
ein bestehendes Schiebetor kaschieren die Öffnungen. Die
Bretterschalung wurde belassen, die neue Aussenwand somit von aussen
nach innen gebaut und mit Zellulosefasern aus Wiesengras gedämmt. Der
Innenraum wird durch einen Speicherofen sowie zwei Körper aus
Lärchenholz, die ein kleines Bad und eine kleine Küche enthalten,
zoniert. Die Haustechnik ist auf ein Minimum reduziert.
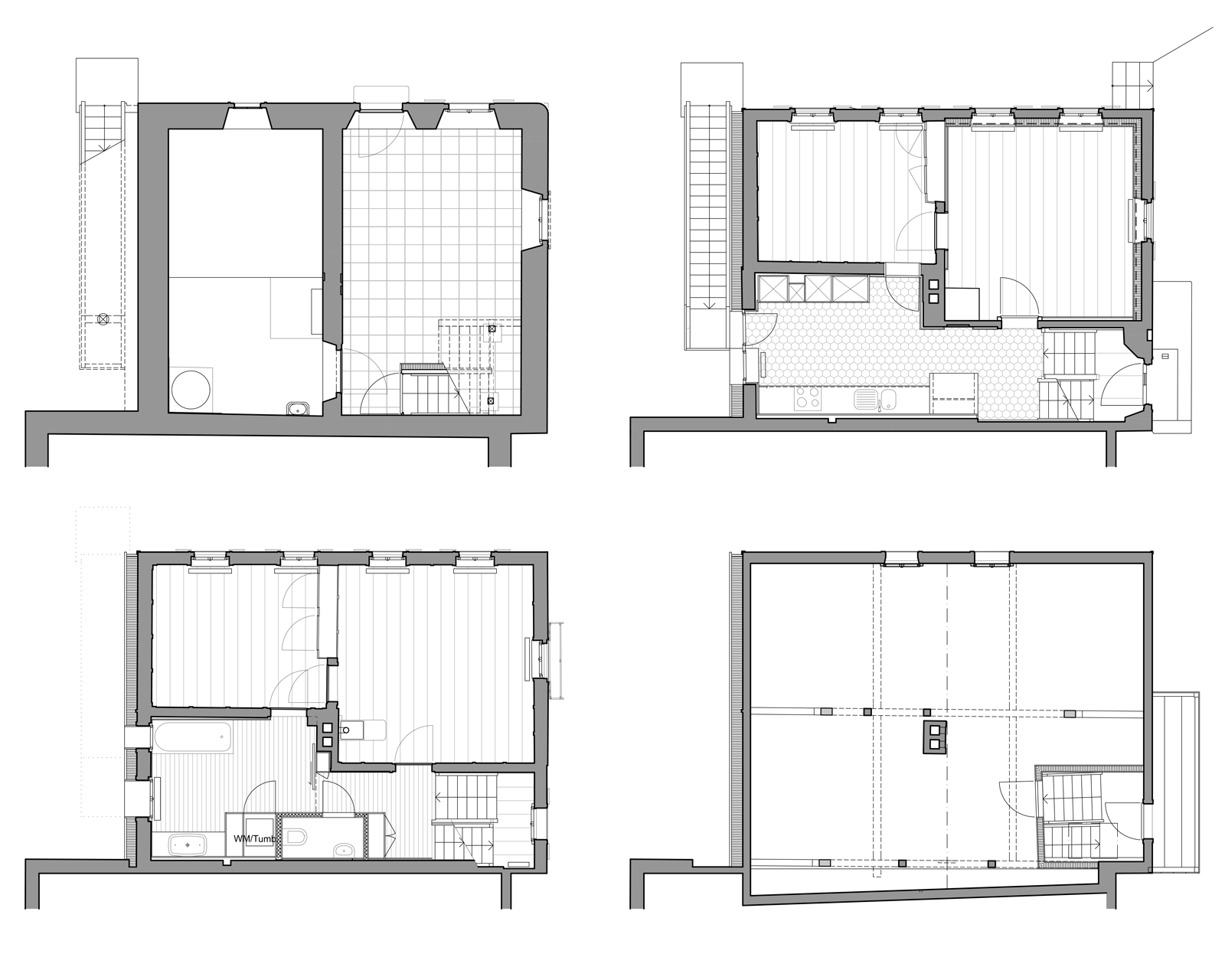
Die ursprüngliche Raumstruktur des Wohnhauses mit drei Kammern und dem Treppenhaus
wurde in den 1970er-Jahren durch massive Eingriffe stark verändert. Der
Rückbau dieser Einbauten und die gut erhaltenen Zimmer auf der Talseite
führten zur Lösung mit einer neuen offenen Raumschicht mit Treppe und
den dienstleistenden Nutzungen Küche und Bad im Rücken der alten
Kammern. Die ursprünglichen Ausbauten wurden wenn immer möglich
belassen, die neuen Eingriffe sind klar ablesbar, mit einer einfachen
Materialisierung aus Fichtenholz und der Verwendung eines traditionellen
Anstrichmittels wurde der bestehende Charakter aufgenommen. Das
Wohnhaus wurde partiell gedämmt und wird neu mit einer Wärmepumpe
geheizt. Eine Treppe von der Küche in den Garten hinunter aktiviert den
gefassten Aussenraum zwischen Wohnhaus und Stallgebäude.
Mehr zur Behandlung der Holzoberflächen
Artikel in tec21 51/2008